B O R G O D I C E S I

Loading

(25 ottobre 2023) - Il Progetto Cesi2026 ha l’obiettivo di creare sviluppo per il borgo grazie a un nuovo rapporto con il suo territorio, in particolare con le sue montagne. Per questo Cesi2026 realizzerà infrastrutture dedicate agli sport all’aria aperta che, in parte, già si svolgono sulla montagna di Cesi, ma la cui pratica sarà sostenuta e supportata dagli investimenti del progetto per diventare una nuova fonte di lavoro e di reddito per i vecchi e i nuovi abitanti del borgo.

Il modello di riferimento è quello che viene dalle migliori esperienze italiane nel settore, come Finale Ligure e Arco di Trento. Nel caso di Cesi all’offerta degli sport outdoor, in rete con le attività outdoor già consolidate della Valnerina e della Cascata delle Marmore e con l’intero territorio dei Monti Martani, si aggiungeranno un’accurata valorizzazione dei beni culturali con particolare riferimento all’archeologia, alla storia della famiglia Cesi, ma anche alle produzioni tipiche locali a partire dall’olio, al termalismo, e allo sviluppo di nuovi servizi sociali, culturali e di connettività all’interno del borgo.

Nella strategia per lo sviluppo degli sport outdoor rientrano diversi degli interventi finanziati con il progetto pilota. Per uno di questi è stato validato nei giorni scorsi il progetto che ha avuto anche il parere favorevole dalla conferenza dei servizi. 
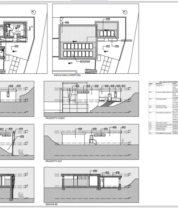
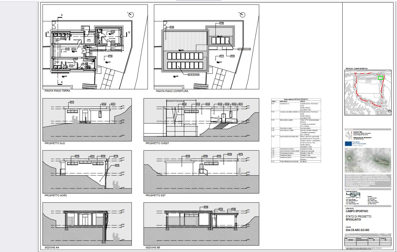
Si tratta della trasformazione del vecchio campo sportivo, da anni in condizioni di completo abbandono, nel “campo base” basso per la pratica degli sport outdoor.

L’intervento prevede la realizzazione di un “hub” cioè di uno snodo, un punto di servizi, per gli sport outdoor. Come da progetto, il vecchio campo sportivo, opportunamente bonificato, ospiterà una pista di Pump Truck, una parete di arrampicata artificiale, spogliatoi e servizi per il noleggio bici, un’area ricarica per le bici elettriche e accoglierà i minibus elettrici a servizio delle varie attività del progetto Cesi2026.

L’intervento sull’ex campo di calcio prevede la riqualificazione paesaggistica del terreno di gioco e delle sue pertinenze, il parcheggio e l’area verde di collegamento con la strada provinciale; è prevista la completa ristrutturazione e l’adeguamento normativo degli immobili che ospitavano lo spogliatoio ed il magazzino del campo sportivo con l’inserimento di un ufficio per le attività di noleggio e di un deposito/officina per le bici, funzionali alle nuove attività sportive. In programma anche la connessione di tutta l’area con la viabilità sentieristica e ciclistica verso il borgo e la montagna di Cesi.

La riqualificazione paesaggistica dell’area avrà come obiettivo la salvaguardia delle alberature in buono stato di conservazione, il recupero delle scarpate con un sistema di drenaggi, la riorganizzazione degli spazi, con un ridisegno a terra dell’area attraverso la creazione (mediante separatori a raso) di percorsi carrabili, ciclabili e pedonali in terra compattata e la riattivazione dei percorsi che vanno dalla viabilità principale all’area sportiva; ad esempio quello che passa attraverso il cancello carrabile situato dopo l’antico lavatoio in pietra subito fuori dall’area di progetto. Il progetto prevede anche la creazione di aree di sosta ombreggiate per ospiti/accompagnatori e l’introduzione di giochi per bambini oltre all’accessibilità per persone diversamente abili. 

Per gli sport outdoor il progetto prevede l’installazione nell’area pianeggiante del campo sportivo di una pista di pump truck, ovvero un circuito con dossi artificiali, da utilizzare per le bici, costituita da moduli prefabbricati facilmente spostabili e riconfigurabili, su un’area complessiva di circa 300 metri quadrati. Sarà poi allestita una parete artificiale per arrampicata posta su una struttura autoportante in acciaio, addossata alla parete Ovest del fabbricato spogliatoi. Avrà un’altezza di circa 7 metri per una superficie complessiva di circa 35 metri quadrati. 

L’area di ricarica dei mezzi elettrici (e-bike e simili) sarà situata in corrispondenza dell’ingresso all’area spogliatoi dove sarà previsto un parcheggio per le auto. 

L’attività di noleggio bici sarà gestita da remoto attraverso un sistema di bike sharing a cura del futuro gestore e delle associazioni che potranno utilizzare gli spazi dell’immobile spogliatoi come hub logistico per i clienti dotato di spogliatoi dedicati, officina riparazione bici e servizi igienici. L’accesso agli edifici potrà essere gestito dalle associazioni attraverso serrature con apertura elettronica che permetteranno l’ingresso agli utenti dell’area sportiva anche in assenza di personale fisicamente presente. 

La nuova struttura sarà dotata di un locale tecnico da destinare a Centrale Tecnologica con un sistema a pompa di calore aria/acqua, che sarà destinata alla climatizzazione dei locali e alla produzione dell’acqua calda sanitaria in accumulo.  L'impianto elettrico che verrà realizzato servirà per la distribuzione alle varie prese di energia elettrica, per l'illuminazione artificiale ordinaria di tutti i locali e per l’illuminazione di sicurezza delle vie di esodo e dei locali particolari in cui vengono ravvisate situazioni di pericolo in caso di improvvisa mancanza di illuminazione.

L’intero intervento sull'ex campo sportivo è finanziato con 500mila euro e il cronoprogramma prevede l’avvio dei lavori nell’estate del 2025

Le strutture per gli sport outdoor nell'ambito del Progetto Cesi2026 saranno completate con altri interventi sulla rete sentieristica, ciclabile, sulle pareti d'arrampicata e sulla rampa di lancio per il parapendio, oltre che con la realizzazione di un altro "campo base" alto per l'assistenza e il ristoro di chi pratica gli sport outdoor nell'attuale Rifugio di Sant'Erasmo, nell'area dell'ex Tiro a Volo.


CRONOPROGRAMMA INTERVENTI REV 02 (cesiportadellumbria.it) 

Gallery