B O R G O D I C E S I

Loading

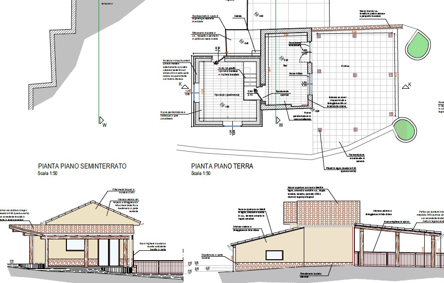
(3.04.2025) - Dopo più di trent'anni dall'esperienza del Martani Trekking, i Monti Martani e in particolare il monte di Cesi, il monte Eolo, tornano a dotarsi di un vero rifugio di montagna. In queste settimane si stanno infatti concludendo i lavori per la completa ristrutturazione dell'ex Tiro a Volo di Sant'Erasmo che ospiterà il nuovo rifugio predisposto per fare da supporto a tutte le attività sportive all'aria aperta e per la ristorazione. I lavori sono stati possibili grazie ai fondi del più ampio progetto "Cesi Porta dell'Umbria" finanziato dal Ministero della Cultura tramite la Linea A del Bando Borghi. Il rifugio avrà un ruolo importante nella gestione dell'attività di sport outdoor destinata ad essere uno dei motori di sviluppo della nuova Cesi. Ci saranno rastrelliere e stazioni di ricarica per le bici elettriche, una piccola officina e, inoltre, il rifugio potrà funzionare come campo base per attività escursionistiche, per l'arrampicata sportiva, oltre che come appoggio per la vicina rampa di lancio del parapendio e per le attività dell'osservatorio astronomico. Ci saranno un bar, un ristoro, che sono stati resi accessibili con una rampa e dei rinnovati servizi igienici.
Il rifugio di Sant'Erasmo sarà collegato anche tramite navette con gli impianti in corso di realizzazione nell'ex campo sportivo di Cesi, dove sono già stati realizzati spogliatoi, locali di appoggio, stazioni di ricarica per bici, pareti d'arrampicata artificiale e una pista "Pump track" per le bici, anche in questo caso con l'obiettivo di fornire servizi completi a chi vorrà dedicarsi agli sport outdoor scegliendo "Cesi porta dell'Umbria" come base. Sempre con questo obiettivo si sta lavorando anche per la ristrutturazione e la messa in sicurezza dei sentieri più importanti e suggestivi.
A questo link la descrizione tecnica dell'intervento sul Rifugio di Sant'Erasmo
Nella galleria fotografica, lo stato attuale dell'intervento, i rendering e i progetti del nuovo rifugio di Sant'Erasmo